-
-
上海市松江区广富林街道1677.4㎡两层底商出售编号:TDEJ202510281020599176 时间:2025-10-28 到期时间:长期
-
¥800万元/亩
上海-上海-松江区
1.26亩
商业服务业设施用地(B)
会员发布土地 -
- 对接费用:免费
-
发布人
刘总
- 发布人星级
-
联系电话
13552319835
-
邮箱
sale@soudi365.com
-
二级开发
-
- 东至 现状
- 西至 文涵路
- 南至 文宇路
- 北至 现状
-
1.26亩 838.7平方米
-
21677.4平方米
-
800万元/亩1008万元
-
6009.3元/㎡2500万元
-
3500万元1年
-
债权 股权资产抵押 股权质押
-
-
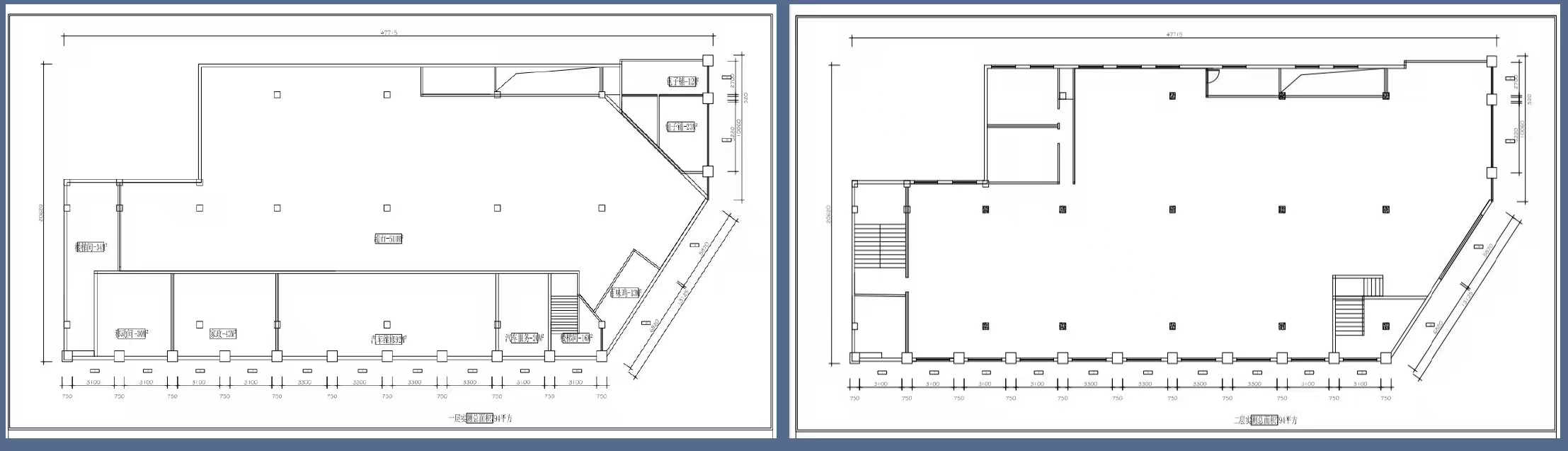
1、项目建筑面积1677.4㎡,层高4.5m,面宽28m,
2、租户一楼为超市,二楼为火锅。年租188万元。
二、交易情况:
1、资产交易,总报价3499万。
2、具体交易细节面议,有意者电联。
-
新疆维吾尔自治区阿克苏地区阿克苏市兰干街道200亩商住项目融资1.5亿
2026-03-27
-
广东省广州市番禺区南村镇15.13亩商业用地定制开发
2026-03-27
-
广东省深圳市南山区桃源街道21万㎡三甲医院出售
2026-03-25
-
广东省深圳市龙岗区南湾街道3.4万㎡商业综合体出售
2026-03-25
-
广东省深圳市福田区香蜜湖街道1.6万㎡商办楼出售
2026-03-25
-
广东省深圳市南山区粤海街道8万㎡酒店商业综合体出售
2026-03-25
-
广东省深圳市罗湖区南湖街道6600㎡整层办公出售
2026-03-25
-
广东省深圳市福田区福田街道34714.76㎡五星级酒店出售
2026-03-25
-
广东省深圳市福田区福田街道136895.89㎡商业综合体出售
2026-03-24
-
山西省阳泉市郊区义井镇59.1亩别墅用地土地款融资3500万
2026-03-23
-
河北省唐山市开平区开平镇130亩别墅用地融资
2026-03-22
-
广西壮族自治区百色市右江区龙景街道75亩居住用地土地款融资
2026-03-22
-
内蒙古自治区呼和浩特市赛罕区乌兰察布东路街道9379.78㎡养老公寓融资2亿
2026-03-22
-
上海市浦东新区唐镇2845㎡办公楼出售
2026-03-21
-
江苏省常州市天宁区茶山街道7058㎡养老项目寻求合作
2026-03-17
-
江苏省南京市江宁区东山街道32.55亩商服项目土地款融资
2026-03-17
-
辽宁省沈阳市和平区长白街道4.6万㎡养老院寻求整体出售、出租、合作经营
2026-03-07
-
广东省东莞市谢岗镇24.53亩商业用地挂牌出让
2026-03-06
-
上海市徐汇区徐家汇街道4177㎡独栋快捷酒店出售
2026-03-06
-
山东省济南市历下区舜华路街道24798.9㎡独栋商业公寓出售
2026-03-06
